Un alojamiento único con una forma singular que subraya su carácter ecológico.

La madera es el material más utilizado en la construcción a lo largo de la historia y no ha cambiado. La madera es también el principal material utilizado para crear el POD.

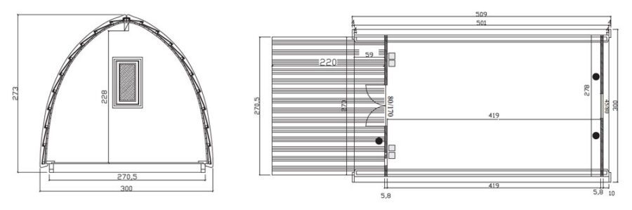
Planos y medidas

Equipamiento

Distintos Sky Front

Remolque
con ruedas

Aislamiento mejorado

Cocina ampliada

Ventana adicional

Entrada lateral

Solicita información de este modelo

Solicita Información

"*" señala los campos obligatorios

Nombre y Apellidos*
Este campo es un campo de validación y debe quedar sin cambios.